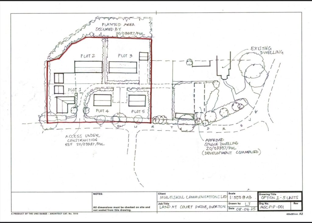
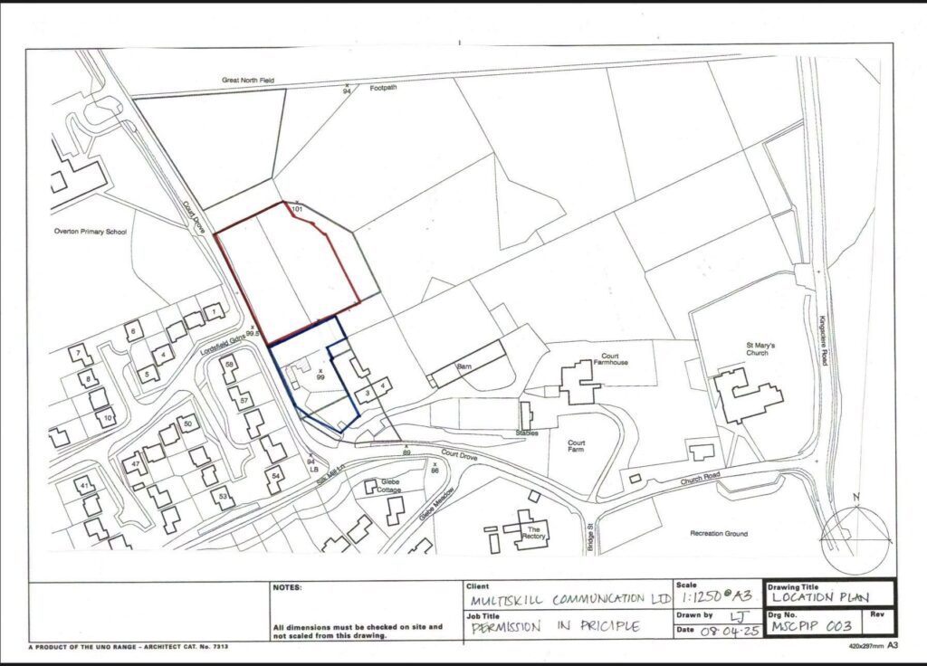
Residents have voiced fresh concerns over a revised planning application that could see up to eight new homes built on a field opposite the primary school — a location that has already been the subject of local objection.
Initial plans for multiple dwellings were scaled back following public feedback, with permission eventually granted for a single property. However, recent activity on the site and the clearing of land suggest that new proposals are now in motion — this time seeking approval for up to eight separate plots.
Local residents fear the change represents a significant shift from the original agreement and could increase traffic congestion and strain village infrastructure. Some are accusing the developers of attempting to bypass the community’s wishes through what they describe as a “sneaky” amendment to the original plan.



Adding to the controversy is the timing of the consultation window, which runs from April 10 to April 23 — a period that includes the Easter break when many school-run parents may be away or less likely to notice the posted notices.
“This feels like a deliberate move to limit objections,” said one concerned resident. “It’s slipped in quietly during a time when many families are away, and it risks going unnoticed until it’s too late.”
Residents are being urged to review the proposal and submit any comments or objections before the April 23 deadline by clicking https://publicaccess.basingstoke.gov.uk/online-applications/applicationDetails.do?keyVal=SUFZ7NCR0AQ00&activeTab=summary



